Wielicka 16

Gliwice, Sośnica, 16 Wielicka St.

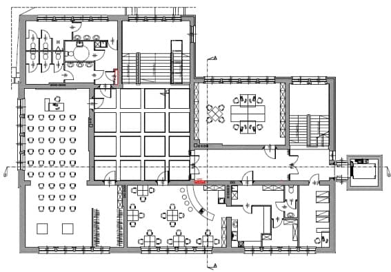
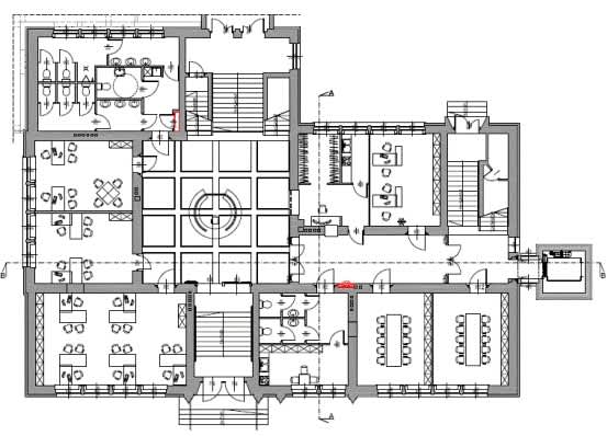
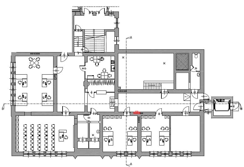
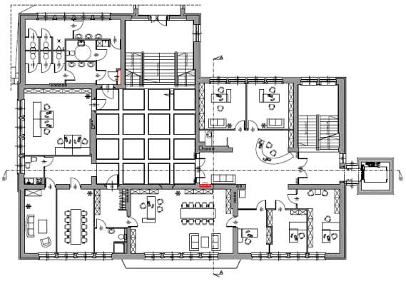
Building description

Wielicka 16 is a 5 storey office and retail building, providing space of modern standard, amounting in total to 1 900 square meters, located on 4 floors. Some of the advantages are a great-planned area and high standard, which guarantee a comfort of use. Moreover, the building is fitted for disabled persons and offers a free, monitored car spaces.

Location description

Show on map

MAP

Location is a significant advantage of the building. Wielicka 16 is well- communicated with center of the city and is located near to DTŚ, A1 and A4 highways, providing easy communication in all directions. Bus stops located nearby ensure good access to public transportation.

Commercial terms

Building information

  • Building status Existing
  • Total building space 2 600 m²
  • Parking ratio 1 / 32 sq m
  • Green building certification -
  • Modernization completion date 2013
  • Total net rentable office space in building 1 875 m²
  • Number of parkings 60

Amenities

  • ATM nearby
  • Conference room
  • Parking included in rent
  • Surface parking free of charge

Standard fit-out

  • Air conditioningAir conditioning
  • Telephone cablingTelephone cabling
  • Computer cablingComputer cabling
  • Power cablingPower cabling
  • Smoke detectorsSmoke detectors
  • CarpetingCarpeting
  • SecuritySecurity
  • Fiber opticsFiber optics

Are you interested in this offer?

Call us and find out more

You can leave your phone number and we will contact you

Similar offices

Contact form

Choose division

Fill the form

*
*
*
*